Sfeervolle 10 persoons appartement vlakbij Pisa (IT0132-3)
Selvatelle Agriturismo is een typisch voorbeeld van een kleinschalig charmant Toscaans vakantieadresje, waar u een heerlijke vakantie kunt doorbrengen. De agriturismo Pisa is gelegen in de Pisaanse heuvels, in het hart van de Alta Valdera. Alleen al van de kronkelige weg er naar toe wordt u blij, ‘bellissima’ uitzicht, omringd door wijngaarden en olijfbomen.
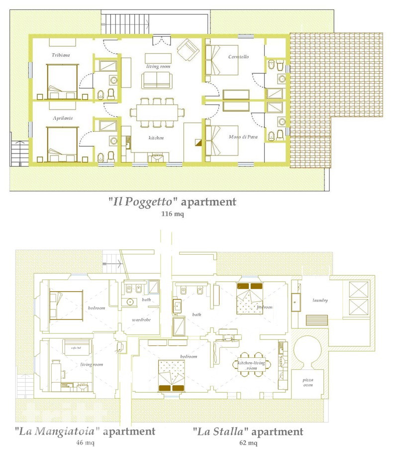
Deze sfeervolle Toscaanse Agriturismo behoort tot een heel groot landgoed van in totaal 198 ha bestaande uit bossen, landbouwgronden, wijn- en olijfgaarden. De naam komt deels van de naam van de kapel van San Giovanni di Pava èn van de Florentijnse familie Pitti die tot het eind van de 17eeuw eigenaar was van het landgoed. Op het landgoed staan een agriturismo met 3 appartementen gevestigd in een gerestaureerd landhuis en een B&B met 5 kamers die zijn ondergebracht in een historische villa op de top van de heuvel.
Op de top van de heuvel liggen behalve de villa ook de historische wijnkelders, het oude kasteel van Pava en een intiem kapelletje (San Giovanni). De villa wordt ook gebruikt om huwelijksfeesten te houden. De afstand tussen de appartementen en de villa is overigens dusdanig dat u hier absoluut geen last heeft van eventueel feestgedruis.
De 3 appartementen zijn ondergebracht in het smaakvol en traditioneel gerestaureerde landhuis Il Poggetto. Het landhuis wordt omgeven door een grote groene ruimte waar u ook ’s avonds heerlijk buiten kunt eten. Overdag kunt u ontspannen bij het zwembad waar voldoende ligstoelen en parasols tot uw beschikking staan. In totaal biedt het landhuis plaats aan 14+5 personen. Het is dus ook geschikt om in zijn geheel te huren met familie of vrienden. U heeft het zwembad dan voor u privé. De villa heeft een eigen zwembad. Buiten staan verder ook een BBQ, een stenen oven en een wasruimte met wasmachine (gebruik met muntjes. Er is een overdekte parkeerplaats voor de auto.
De villa ligt op 200m van de appartementen. Ontbijt wordt altijd in de villa geserveerd. Van Mei tot September worden er huwelijksfeesten georganiseerd in de villa, er wordt dan tot 01.00u muziek gedraaid, hier heeft u overigens weinig last van.
CIN: IT050036B5QVRMKYMG (14/19 pers.) Casale Il Poggetto (BG/EV 14+5 pers.), het gehele landhuis 7 tweepersoonsslaapkamers, 6 badkamers.
Zie voor beschrijving interieur en indeling de afzonderlijk genoemde appartementen. Het landgoed produceert biologische olijfolie en een serie bekende Toscaanse wijnen en Chianti DOCG wijnen, alsmede Vinsanto en Grappa. Uw gastvrouw(en) nemen u graag mee door de wijngaard om u er meer over te vertellen. In het seizoen worden er ook kooklessen georganiseerd en zijn er wijn- en olieproeverijen. Daarnaast kunt u ook uitgebreide informatie krijgen over de beste paden om te wandelen en te mountainbiken en over leuke trips die u in de omgeving kunt maken.
Terricciola is een goed vertrekpunt om een aantal bekende steden te bezoeken. Florence, Pisa, Siena en Lucca zijn goed te bereiken. U kunt ook de kleine dorpjes in de buurt bezoeken zoals Terricciola zelf, Lari en Lajatico. Boodschappen kunt u doen in Terricciola en La Rosa. Natuurlijk kunt u de kust opzoeken. Binnen een uur bent u bij het strand van Vada of Cecina. In de omgeving kunt u ook diverse sportieve activiteiten ondernemen, er is een manege op 15 km, een golfbaan op 40 km, tennisbaan op 20 km.
La Rosa 3 km, Volterra 20 km, Pisa 40 km (vliegveld), Siena 70 km, Florence 90 km, Lucca 50 km, kust 44 km (Cecina, Vada).
Onderstaande appartementen zijn ook afzonderlijk te boeken. Klik op een van de appartementen voor meer informatie en beschikbaarheid.
IT050036B5QVRMKYMG
Heb je een vraag? Hiernaast vind je snel antwoord. Staat je vraag er niet bij? Neem gerust contact op of bekijk de FAQ pagina
We doen ons uiterste best om de beschikbaarheid zo actueel mogelijk te houden. Bij de meeste accommodaties kun je direct zien of jouw gewenste periode nog vrij is. Twijfel je of wil je iets dubbelchecken? Neem dan gerust contact met ons op. We kijken graag met je mee, liever een vraag te veel dan een teleurstelling later.
Wij laten je niet aan je lot over. Mocht je tijdens je verblijf ergens tegenaan lopen, dan kun je contact opnemen met de beheerder of als dat nodig is met ons. Samen zorgen we ervoor dat je onbezorgd kunt genieten van je vakantie.
Sommige vakantiehuizen verwelkomen graag honden, andere liever niet. Op de accommodatiepagina zie je direct of jouw viervoeter mee mag. Twijfel je of heb je meerdere huisdieren? Neem dan even contact met ons op. We denken graag met je mee voor een verblijf waar iedereen zich welkom voelt, inclusief de hond.
Dat verschilt per accommodatie, maar meestal zijn zaken zoals bedlinnen, handdoeken en de eindschoonmaak inbegrepen. Soms betaal je ter plaatse nog een kleine bijdrage voor bijvoorbeeld toeristenbelasting of verwarming in het voor- of najaar. Op elke accommodatiepagina vind je een helder overzicht van wat wel en niet inbegrepen is. Zo kom je niet voor verrassingen te staan.
Veel van onze accommodaties zijn geschikt voor gezinnen. Denk aan een omheind zwembad, een grasveld om te spelen, of zelfs een speeltoestel in de tuin. Op de pagina van de accommodatie kun je zien of het huis kindvriendelijk is ingericht. Heb je jonge kinderen of specifieke wensen? Laat het ons weten, dan adviseren we je graag persoonlijk.
Ja, in de meeste vakantiehuizen is wifi beschikbaar. Houd er wel rekening mee dat je midden in het Italiaanse landschap soms net wat minder stabiel internet hebt dan thuis. Maar zeg nou zelf.. een beetje offline gaan hoort soms ook gewoon bij vakantie, toch?
In veel accommodaties is airconditioning of verwarming aanwezig, afhankelijk van het seizoen. Dit staat altijd duidelijk vermeld bij de faciliteiten. Heb je een voorkeur of reis je in een periode met extreme temperaturen? Laat het ons weten, dan helpen we je met het vinden van een comfortabele plek.
Bij sommige accommodaties kun je extra’s regelen, zoals een lokaal ontbijt, een kookles, wijnproeverij of zelfs een privéchef. Deze services worden vaak ter plaatse besproken en afgerekend. Zie je iets wat je aanspreekt of wil je iets speciaals regelen? Vraag het ons gerust, we helpen je graag met een unieke beleving.
We snappen dat plannen soms veranderen. Daarom vind je op onze site duidelijk de annuleringsvoorwaarden. Wil je graag wat meer zekerheid of advies op maat? Neem dan contact met ons op. Samen kijken we naar de mogelijkheden. Altijd met als doel om jou met een gerust gevoel op reis te laten gaan.
Dat verschilt per accommodatie. In Italië is het bij sommige zwembaden inderdaad verplicht om een badmuts te dragen, meestal om het water schoon en helder te houden. Andere locaties zijn hier wat soepeler in en laten het aan de gasten zelf over.
Op de pagina van de accommodatie kun je meestal terugvinden of het zwembad specifieke regels heeft. Twijfel je? Vraag het ons gerust. En voor de zekerheid: een badmuts neemt weinig ruimte in en kan zomaar van pas komen. Al is het alleen maar om lekker Italiaans voorbereid op pad te gaan.
In theorie wel, maar in de praktijk raden we het niet aan. Italië is een prachtig, maar uitgestrekt land. Onze accommodaties liggen vaak juist op die rustige, groene plekken waar je de krekels hoort en ’s avonds de sterren kunt tellen, en die liggen meestal niet om de hoek van een station.
Openbaar vervoer brengt je vaak tot een stad of dorp in de buurt, maar daarna wordt het lastig. Bussen rijden beperkt, taxi’s zijn schaars en wandelend met koffers over landweggetjes is… nou ja, een avontuur op zich.
Wil je de omgeving écht ontdekken, een lokale markt bezoeken, naar dat ene afgelegen strandje of een wijnboer in de heuvels? Dan is een eigen (huur)auto echt onmisbaar. Zo reis je in je eigen tempo en haal je alles uit je vakantie.
We werken hiervoor samen met Sunny Cars, een betrouwbare partner waarbij je altijd all-in huurt, zonder verborgen kosten. Zo begin je je vakantie zorgeloos én flexibel
Neem contact met ons op!
Wij zijn bereikbaar tot 16:30
Milan
Italiëspecialist

Beoordeeld met een 8,6/10
Transparante prijzen
De Italië specialist met laagste prijs garantie
Aanbod op maat